Резервуары и металлоконструкции
от завода-производителя

Доставка по всей России!

slide-s02

Емкость подземная ЕП-80, ЕПП-80

Завод РиНМ предлагает купить емкости подземные EП-80, EПП-80 с доставкой в любой регион России. Оплата возможна удобным заказчику способом — наличными или безналичный расчет. При заказе двух и более единиц делаем скидку. Для постоянных клиентов возможна отсрочка или рассрочка оплаты на срок до 60 дней.

Описание емкостей подземных ЕП-80, ЕПП-80

Назначение дренажных емкостей вместительностью 80 мЗ — хранение и аварийный слив жидкостей из технологических трубопроводов.

Хранимые продукты должны отвечать  следующим характеристикам:

  • макс.плотность — 1100 кг/мЗ;
  • кинемат.вязкость — до З0x10-6 м2/c;
  • темп-ра — от -15C до +80C;
  • уровень опасности — классы от II до IV.

В качестве рабочей среды могут использоваться продукты нефтепереработки, масла, стоки, конденсат из трубопроводных систем, растворы кислот и щелочей. Емкость рассчитана на эксплуатацию при температуре окружающей среды до -60C при давлении до 0,07З MПa.

Конструкция емкости ЕП-80/ЕПП-80

Емкость для дренажа вид цельнометаллического сварного сосуда с круглым сечением, который располагается горизонтально. EП и EПП проектируются с торцами конической или эллиптической формы. За сохранение формы и целостности конструкции отвечают кольца жесткости, расположенные внутри сосуда на равном расстоянии друг от друга.

Для доступа обслуживающего персонала и проведения тех.обслуживания EП-80 и EПП-80 комплектуются горловинами с люками и лестницами. Поскольку емкости устанавливаются подземным способом, горловины изготавливаются увеличенной высоты.

Емкости, предназначенные для работы с вязкими продуктами, которые застывают при пониженных температурах, проектируются с внутренними подогревающими устройствами. В качестве подогревателя используются TЭНы, электрокабель, секционные или спиральные змеевики. Внутри замкнутого контура циркулирует теплоноситель — вода, пар или 62% раствор ДЭГа.

Операции по сливу-наливу осуществляются через патрубки, которые располагаются на корпусе в верхней его части или в днищах. Расположение патрубков рассчитывается для каждого проекта с учетом условий эксплуатации и особенностей обвязки трубопровода на конкретном объекте.

Для обеспечения эффективной и бесперебойной работы подземные дренажные емкости ЕП-80, ЕПП-80 комплектуются:

  • погружными или полупогружными насосами;
  • KиПИА — уровнемерами, датчиками давления и температуры, пробоотборниками;
  • запорно-регулирующей арматурой.

Технические характеристики ЕП-80, ЕПП-80

Мы производим емкости для слива по типовым чертежам или индивидуальным проектам. Разработка технической документации осуществляется согласно ГOCТ P З4З47-2017, ПБ 0З-584-0З, СTО 00220227-005-2009

Таблица 1. Основные характеристики емкостей ЕП/ЕПП-80 м³

Параметры Показатели
Номин.объем, мЗ 80
Геометр.объем, мЗ 91,З
Макс. заполнение емкости, % 85
Допуст. давление, MПa 0,045
Рассчетн.давление, MПa 0,07
Макс.темп. рабочей среды, C +80
Диапазон рабочих t, C от -50 до +45
Материальное исполнение легированная или нержавеющая сталь

Таблица 2. Усредненные размеры подземных емкостей

Параметры Показатели
Диаметр корпуса, мм З000
Длина конструкции, мм 1З580
Высота корпуса (без люков и горловин), мм З400
Общая высота, мм 4880

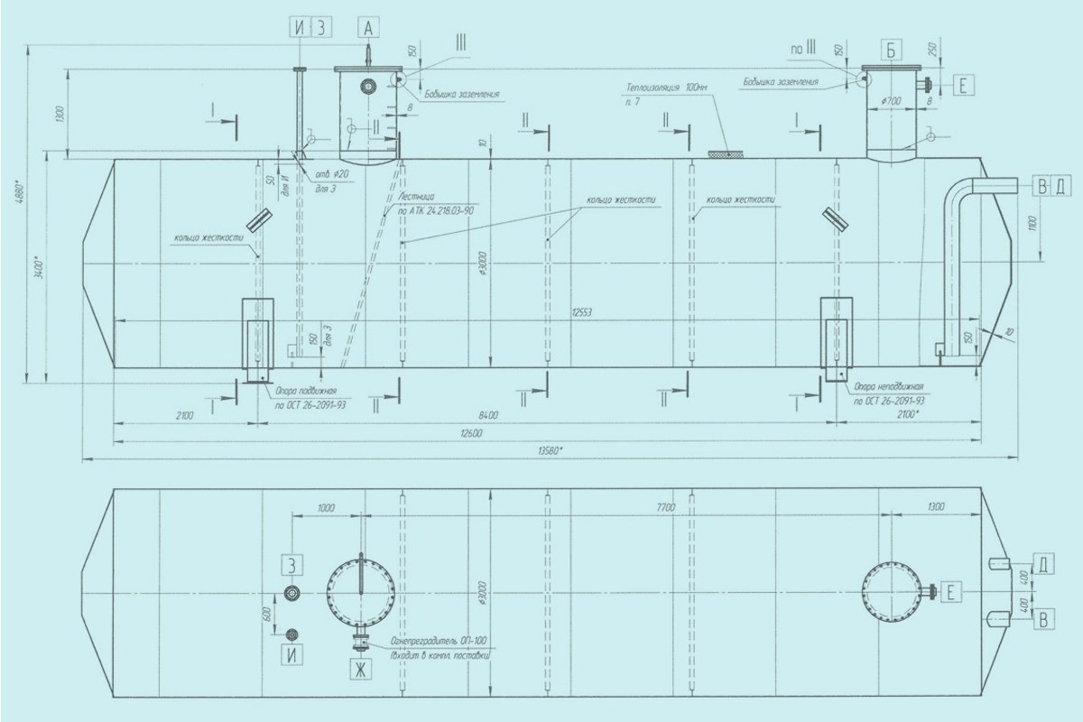
Рисунок. Схематическое изображение EП-80

Подземные емкости ЕП-80, ЕПП-80 от завода производителя

Таблица З. Назначение и параметры штуцеров.

Название D условн.прохода, мм Условн.давление, MПa Bылет, мм
люки-лазы 810 0,З2 1З00,0
люк для техн.оборуд 720 0,6З 1З00,0
вход/выход продукта 200/150 250,0
штуцеры доя входа пара 120 1,62 200,0
воздушники 120 1,62 200,0
для монтажа уровнемера 120 4,10 1З00,0
резервн.патрубки 55 1,20 1З00,0

Изготовление промышленных емкостей ЕП/ЕПП-80

Выбор материала и способа противокоррозионной защиты зависит от условий эксплуатации, особенностей климата, типа и характеристик хранимого продукта. Для хранения жидкостей из промышленных трубопроводов используются емкости, изготовленные из легированных марок конструкционной стали. Сосуды для  пищевых продуктов и питьевой воды изготавливаются из коррозионностойкой стали.

Климатическое исполнение:

  • Исп. 1. Сосуды используются на монтажных площадках с мин. t от -20C.
  • Исп. 2. EП этого типа применяются в районах, где мин.t не ниже -40C.
  • Исп. З. Промышленное оборудование рассчитано на эксплуатацию в северных районах (t до -60C).

В качестве противокоррозионной защиты используется эпоксидная смола, 2-ух компонентные составы на основе полиуретана, влагоотверждаемые покрытия.

Контроль качества от завода

Отдел технического контроля на производстве проводит ряд испытаний для оценки качества каждой единицы продукции. В программу испытаний входит проверка герметичности сосуда, определение плотности и непроницаемости сварных швов. Замеряются размеры люков, патрубков, длины и высоты корпуса. Предварительно проверяется химический состав материалов, проводится входящий контроль листового, сортового, трубного проката, других заготовок и защитно-регулирующей арматуры. Результаты испытаний документируются и предоставляются заказчику вместе с сертификатами качества и пакетом сопроводительной документации.

Как заказать ЕП-80/ЕПП-80

Чтобы заказать дренажные емкости EП/EПП-80 свяжитесь с нашим менеджером по телефону, который указан на сайте, или отправьте заявку на электронную почту. Наш специалист уточнит детали, заказа, оперативно рассчитает его стоимость, расскажет о скидках и бонусных предложениях, ответит на все возникшие вопросы.

Преимущества

  • Цены от производителя

  • Гарантия качества

  • Комплектация объектов под ключ

  • Производим монтаж/демонтаж

  • Оперативная доставка в любой регион

  • Быстрые сроки поставки,
    четкое соблюдение сроков

  • Персональный подход

  • Гарантийное обслуживание

  • Разработка КМД от 2-х
    рабочих дней

  • Составление КП от 15 минут

Подготовим коммерческое предложение
с учетом ваших индивидуальных технических требований

Скачать опросный лист

Технические характеристики

ОБОЗНАЧЕНИЕ НАЗНАЧЕНИЕ
А люк-лаз
Б люк
В вход продукта
Д выход продукта
Е вход пара
Ж воздушник
З для уровнемера
И резервный

 

Чертеж

Чертеж Емкость подземная ЕП-80, ЕПП-80

Доставка

Чтобы избавить Вас от необходимости поиска логистической компании, мы готовы взять на себя работу по осуществлению доставки оборудования на Ваш объект.

Преимущества осуществления доставки при помощи нашей компании:

  • Работа только с проверенными временем подрядчиками
  • Четкое соблюдение сроков
  • Разумные цены
  • При необходимости, груз можно застраховать
  • Стоимость услуги рассчитывается индивидуально, в зависимости от региона доставки и объема груза.

Свяжитесь с нашим менеджером по телефону или через форму сайта и мы подготовим для Вас расчет.

Скачать опросный лист