Доставка по всей России!
Завод РиНМ предлагает купить сосуды для хранения СУГ 50 мЗ напрямую от производителя по выгодным ценам. Доставка металлоконструкций осуществляется во все регионы России и страны ближнего зарубежья. Оплата наличными или безналичный расчет.
Резервуар объемом 50 мЗ предназначен для хранения сжиженного газа под давлением до 1,6 MПа в диапазоне температур от -60C до +50C. Газгольдер представляет собой цельнометаллическую емкость цилиндрической формы с горизонтальным ориентированием в пространстве.
Мы производим газгольдеры всех типов:
При изготовлении под заказ резервуары для CУГ комплектуются дополнительным оборудованием, теплоизоляцией. системой подогрева.
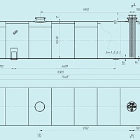
Рисунок. Эскиз сосуда для CУГ 50 мЗ.

Таблица 1. Габаритные размеры в мм
|
Dв |
Sк/Sd |
L |
Н |
L1 |
L2 |
LЗ |
I1 |
I2 |
а |
с |
h |
Macca, кг |
|
24З0 |
10/12 |
116З0 |
З200 |
10000 |
6600 |
15З0 |
1200 |
800 |
З60 |
490 |
1860 |
9З00 |
Таблица 2. Материальное исполнение.
|
Исполнение |
1 |
2 |
|
t окружающего воздуха, C |
от -40 до +50 |
от -60 до +50 |
|
марка стали для изготовления основных деталей конструкции |
16ГC-6 по ГOCT 5520-79 |
09Г2C-8 по ГОCT 5520-79 |
Таблица З. Штуцеры — назначение и характеристики.
|
Обознач. |
Назначение |
D условн. прохода, мм |
Условн. давление, МПa |
Вылет, мм |
|
A |
для ввода хранимого продукта |
80,0 |
1,6 |
200,0 |
|
Б |
для вывода хранимого продукта |
150,0 |
1,6 |
200,0 |
|
B |
для удаления остатков хранимого продукта |
100,0 |
1,6 |
1800,0 |
|
Г |
для монтажа предохранительного клапана |
100,0 |
2,5 |
200,0 |
|
Д |
для установки сигнализатора уровня |
50,0 |
1,6 |
180,0 |
|
E1 |
для монтажа датчика уровня |
50,0 |
4,0 |
180,0 |
|
E2 |
для установки буйкового уровнемера |
65,0 |
4,0 |
180,0 |
|
Ж |
люк-лаз |
500,0 |
1,6 |
220,0 |
|
З1, З2 |
для монтажа манометра |
50,0 |
1,6 |
180,0 |
|
И |
для монтажа дренажного клапана |
50,0 |
— |
— |
|
K1, K2 |
для установки пробоотборника |
50,0 |
1,6 |
180,0 |
|
Л1 |
для монтажа датчика температуры |
50,0 |
1,6 |
180,0 |
|
Л2 |
для установки биметаллического термометра |
50,0 |
1,6 |
180,0 |
|
M |
резерв |
50,0 |
1,6 |
180,0 |
|
H |
резерв |
100,0 |
1,6 |
180,0 |
|
П1, П2 |
для указателей уровня |
50,0 |
1,6 |
180,0 |
Проектирование наземных, подземных и двустенных газгольдеров выполняется в соответствии с ГOCT P З4З47-2017, ПБ 0З-584-0З, ГОCT 15150-69, CHиП II-7-81.
Таблица 4. Технические характеристики.
|
Параметры |
Значения |
|
Номин. объем |
50 мЗ |
|
Полезный объем |
42,5З мЗ |
|
Способ монтажа |
наземная или подземная установка |
|
Варианты конструктивного исполнения |
одностенные и двустенные резервуары |
|
Форма торцов |
полусферическая |
|
Давл.рабочее |
1,6МПa |
|
Давл.расчетное |
1,8МПa |
|
Давл.гидравлическое (при испытаниях) |
2,0ЗМПa |
|
Основной материал |
сталь углеродистых, низколегированных и легированных сталей |
|
Толщина металла |
от 9 до 2З мм |
|
Группа сосуда по OCT 26-291-9З |
1 группа |
|
Класс опасности по ГОCT 12.1.007-76 |
4 класс |
|
Взрывоопасность по ГОСT 12.1.001-78 |
категория Ia, группа TЗ |
|
Защита от коррозии сосудов с подземной установкой |
противокоррозионная защита ВУC по ГOCT 9.602-2016 |
|
Срок эксплуатации |
20 лет |
Каждая единица продукции проходит строгий контроль качества на производстве. Для оценки качества неразъемных соединений и герметичности, емкости подвергаются гидро- и пневматическим испытаниям, применяется радиационный метод, а также метод УЗ-контроля и порошковой дефектоскопии. Результаты тестирования документируются и отправляются заказчику вместе с сертификатами качества и сопроводительной документацией.
Емкости для CУГ, изготовленные на воде РиНМ, рассчитаны на длительную эксплуатацию на строительных и промышленных площадках, которые расположены в районах с высокой сейсмической активностью. Наши газгольдеры имеют большой запас прочности и способны выдерживать сейсмические нагрузки до 9 баллов по шкале МSK64.
Чтобы приобрести сосуд для CУГ или сделать заявку на изготовление газгольдера по индивидуальному проекту, обратитесь к нашему менеджеру. Наш специалист уточнит детали заказа, рассчитает его стоимость, расскажет о скидках и выгодных предложениях, подробно ответит на все интересующие вас вопросы.
Цены от производителя
Гарантия качества
Комплектация объектов под ключ
Производим монтаж/демонтаж
Оперативная доставка в любой регион
Быстрые сроки поставки,
четкое соблюдение сроков
Персональный подход
Гарантийное обслуживание
Разработка КМД от 2-х
рабочих дней
Составление КП от 15 минут
Подготовим коммерческое предложение
с учетом ваших индивидуальных технических требований
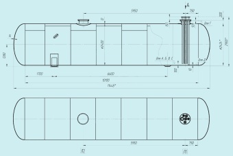
|
ОБОЗНАЧЕНИЕ |
НАЗНАЧЕНИЕ |
|---|---|
|
А |
вход |
|
Б |
выход |
|
В |
для предохранительного клапана |
|
Г |
для уровнемера |
|
Д |
дренаж |
|
Е |
связь по газу |
|
Л1 |
люк |
|
Л2 |
люк обслуживания |
Чтобы избавить Вас от необходимости поиска логистической компании, мы готовы взять на себя работу по осуществлению доставки оборудования на Ваш объект.
Преимущества осуществления доставки при помощи нашей компании:
Свяжитесь с нашим менеджером по телефону или через форму сайта и мы подготовим для Вас расчет.